ホーム
イベント情報
商品プラン
標準仕様
施工事例
土地情報
お客様の声
モデルハウス
住宅ローン相談
スタッフブログ
会社概要
ご来場予約
お問い合わせ
カタログダウンロード
プライバシーポリシー
採用情報
CLOSE
TOP
イベント情報
商品プラン
施工事例
土地情報
住宅ローン相談
スタッフブログ
会社概要
採用情報
来場予約
お問い合わせ
0120-976-603
10:00~18:00 / 毎週、水曜・木曜定休
施工事例
WORKS
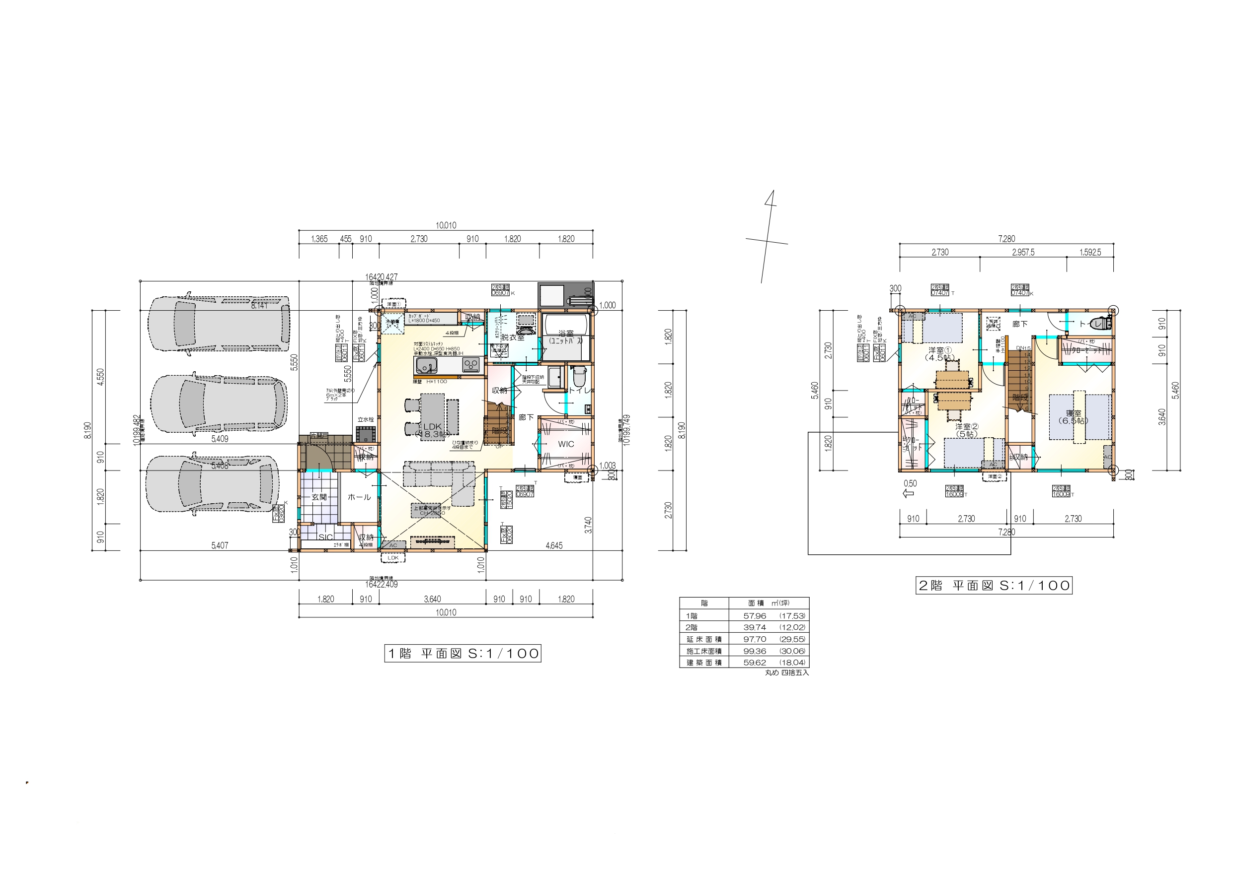
大村市N様邸 3LDK
大村市N様邸 3LDK
収納力抜群!中庭もあるお家
施工事例一覧へ戻る
0120-976-603
10:00~18:00 / 毎週、水曜・木曜定休
来場予約
お問い合わせ
カタログ請求
ホーム
イベント情報
商品プラン
標準仕様
施工事例
土地情報
お客様の声
モデルハウス
非住宅建築
アフターメンテナンス
会社概要
住宅ローン相談
スタッフブログ
スタッフ紹介
ご来場予約
お問い合わせ
カタログ請求
プライバシーポリシー